Servizi sito EC Service di Ezio Costa - ECService2020

e-mail
service@eziocosta.it
ecservice@pec.it
Contattaci
Tel.    +39 0248464046
Mob. + 39 3385075373
Centro Autorizzato

Vai ai contenuti


Servizi di ricerca perdite con cercafughe per ELIO

Ricerca perdite con cercafughe per ELIO

L’utilizzo  degli spettrometri di massa per Elio nei sistemi da Vuoto, garantisce  una campo di ricerca perdite con valori che vanno da 1x10+3 Millibar l/s  a 1x10-12 Millibar l/s; oltre ad essere la tecnica che garantisce  il campo di ricerca perdite più esteso, l’utilizzo dell’Elio ( gas  Inerte) come gas tracciante è anche garanzia di sicurezza del personale e  dell'ambiente.

- Apparecchiature utilizzate dalla EC SERVICE per la ricerca perdite

- Spettrometro di massa per Elio EDWARDS VACUUM  Mod. SPECTRON 300E

- Sniffer robe per prove in pressione da 1.5 M

- Visco Probe per prove in  pressione da 3-12-25 M

- Perdita calibrata al quarzo di riferimento 2x10-8 Millibar l/s

- Bombola di Elio con relativi adattatori.  

- Valvole e connessione da Vuoto.  

Tipi di ricerca perdite effettuabili:
Su sistemi in vuoto
La  ricerca perdite viene effettuata collegando il Cercafughe in parallelo  al gruppo di pompaggio da vuoto già esistente sull’impianto, utilizzando  una bombola pressurizzata con Elio si spruzza il gas tracciante nei  punti dove si presume ci siano perdite: l’indicazione di perdita verrà  segnalata rapidamente dallo spettrometro di massa.

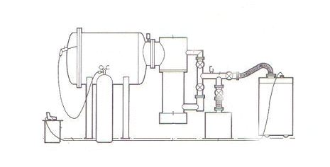
Schema tipico ricerca perdite su sistemi in pressione di Elio
Su sistemi in pressione
La ricerca perdite viene effettuata pressurizzando con Elio il sistema o l’oggetto da controllare. Le eventuali fuoriuscite di Gas vengono evidenziate dallo Spettrometro di massa utilizzando una sonda tipo “Sniffer” da 1,5 M o con sonde tipo “Visco” da 3-12-25 Metri.

Schema tipico ricerca perdite su sistemi in pressione di Elio
Verifiche Vuoto
- Sono possibili visite  per la verifica "in sito" della strumentazione da vuoto, con strumentazione calibrata e certificata.
- Consulenze

Sono possibili visite in loco per consulenza di base relativa alle problematiche di Vuoto e Alto vuoto.

Sede:
Via Carpaccio, 39
20090 Trezzano S/N (MI)


Web design 2020 Claudio Costa
P. IVA 02991410966
Codice destinatario: M5UXCR1
Torna ai contenuti